Việc lựa chọn công ty sản xuất vỏ tủ điện uy tín là yếu tố then chốt để đảm bảo an toàn, độ bền và hiệu quả vận hành hệ thống điện trong các công trình công nghiệp, dân dụng. Với yêu cầu ngày càng cao về chất lượng, khả năng chống bụi, chống nước và thiết kế linh hoạt theo dự án, người dùng cần hiểu rõ tiêu chí đánh giá và các lựa chọn phù hợp trước khi đặt gia công.

Tìm hiểu về vỏ tủ điện và các chức năng chính
Vỏ tủ điện là lớp vỏ bao bọc bên ngoài các thiết bị điện như aptomat, khởi động từ, contactor, relay… có chức năng chính là bảo vệ thiết bị bên trong khỏi ánh sáng, nước, bụi bẩn, va đập cơ học.
Các chức năng chính của vỏ tủ điện:
- Bảo vệ thiết bị điện: Ngăn chặn các tác động tiêu cực từ môi trường như bụi bẩn, nước, độ ẩm, và va đập cơ học.
- Đảm bảo an toàn cho người sử dụng: Cách ly các bộ phận mang điện, giảm thiểu rủi ro giật điện.
- Tổ chức và sắp xếp khoa học: Giúp bố trí các thiết bị điện một cách gọn gàng, có hệ thống.
- Hỗ trợ bảo trì và vận hành: Tạo điều kiện thuận lợi cho việc kiểm tra, sửa chữa và vận hành hệ thống điện.
Phân loại vỏ tủ điện phổ biến trên thị trường
- Vỏ tủ điện trong nhà, ngoài trời
- Vỏ tủ điện treo tường, âm tường, đặt sàn, treo cột
- Tủ điện điều khiển, tủ tổng, tủ phân phối, tủ ATS, tủ bị điện đỏng
- Vỏ tủ điện theo chuẩn IP: IP54, IP55, IP65…

>>> Xem thêm: So Sánh Vỏ Tủ Điện Trong Nhà và Ngoài Trời
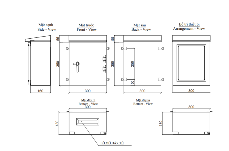
Kích thước và thông số kỹ thuật của vỏ tủ điện
Một số kích thước vỏ tủ điện phổ thông bao gồm:
Tủ điện âm tường:
Thường có kích thước nhỏ gọn:
300x400x200mm
400x600x250mm
500x700x250mm
Tủ điện nổi trong nhà:
Kích thước phổ biến hơn:
600x800x250mm
800x1000x300mm
1000x1200x300mm
Tủ điện ngoài trời:
Thường có kích thước lớn:
1600x800x600mm
1800x800x700mm
2300x800x1000mm

Tủ điện có chân:
Kích thước đa dạng
1800x800x400mm
1600x600x450mm
2300x800x800mm
Kích thước tủ điện công nghiệp:
Chiều cao: 400 – 2200mm
Chiều rộng: 300 – 1000mm
Chiều sâu: 150 – 1000mm
Độ dày vật liệu phổ biến của vỏ tủ điện gồm có:
- 0.8 mm
- 1.0 mm
- 1.5 mm
- 2.0 mm
Khi lựa chọn vỏ tủ điện cần lưu ý các thông số kỹ thuật sau:
- Độ dày lớp vỏ
- Khả năng chịu lực, chống bụi, chống nước
- Khả năng tản nhiệt và thiết kế thông gió
- Loại khóa sử dụng và mức độ an toàn
- Tiêu chuẩn IP (IP54, IP65, IP66) phù hợp điều kiện môi trường
Vật liệu và tiêu chuẩn sản xuất vỏ tủ điện
1. Vật liệu sản xuất vỏ tủ điện
Thép Sơn Tĩnh Điện:
- Đặc điểm: Thép cán nguội/mạ kẽm, độ dày 1.0-2.0mm, phủ sơn tĩnh điện chống ăn mòn.
- Ưu điểm: Chi phí hợp lý, bền, dùng trong nhà/ngoài trời nhẹ.
Inox (304/316):
- Đặc điểm: Chống ăn mòn vượt trội, độ dày 1.0-2.0mm, không cần sơn.
- Ưu điểm: Lý tưởng cho môi trường khắc nghiệt (gần biển, nhà máy hóa chất).
Nhựa (ABS/PVC):
- Đặc điểm: Nhẹ, không dẫn điện, chống ăn mòn hóa học.
- Ưu điểm: Phù hợp môi trường đặc biệt (nhà máy thực phẩm).

2. Tiêu chuẩn sản xuất vỏ tủ điện
- IP54: Chống bụi nhẹ, chống tia nước, dùng trong nhà (văn phòng, nhà xưởng).
- IP65: Chống bụi hoàn toàn, chống tia nước mạnh, dùng ngoài trời (công trình).
- IEC60529: Quy định mức bảo vệ IP, đảm bảo an toàn quốc tế.
- IEC 61439-1: Tiêu chuẩn tủ điện hạ thế, đảm bảo thiết kế và an toàn cho công nghiệp.
- Độ Bền: Vật liệu chống ăn mòn, bảo hành 18-36 tháng.
Quy Trình Sản Xuất Vỏ Tủ Điện Tại Xưởng FUCO E&C
Quy trình sản xuất vỏ tủ điện tại xưởng sản xuất vỏ tủ điện FUCO E&C bao gồm 5 bước chính.
Bước 1: Thu Thập Yêu Cầu Khách Hàng
- Đội ngũ FUCO E&C tiếp nhận thông tin từ khách hàng.
- Các chuyên gia tư vấn thiết kế bản vẽ sơ bộ phù hợp.
Bước 2: Gia Công Nguyên Liệu
- Kiểm tra vật liệu đầu vào (thép, inox, nhựa ABS) đảm bảo độ dày và kích thước đạt tiêu chuẩn (IP54, IP65, IEC60529).
- Sử dụng máy cắt laser CNC để tạo lỗ khoét và các chi tiết liên kết chính xác theo thiết kế.
- Chấn gấp định hình và hàn ghép, sau đó mài nhẵn để hoàn thiện cấu trúc.

Bước 3: Sơn Phủ Tĩnh Điện
- Vỏ tủ được phủ lớp sơn tĩnh điện chất lượng cao, đảm bảo độ bền, chống ăn mòn và thẩm mỹ.
- Công nghệ sơn tiên tiến giúp sản phẩm đạt tiêu chuẩn cao cấp, phù hợp với các dự án công nghiệp.
Bước 4: Lắp Ráp Chính Xác
- Các bộ phận được lắp ráp tỉ mỉ bởi đội ngũ kỹ thuật viên lành nghề, tuân thủ bản vẽ kỹ thuật và tiêu chuẩn cơ điện.
- Mọi chi tiết được kiểm tra kỹ lưỡng để đảm bảo độ chính xác và độ bền.
Bước 5: Hoàn Thiện Và Bàn Giao
- Vỏ tủ điện được lắp ráp hoàn chỉnh, kiểm tra cơ khí lần cuối trước khi bàn giao.
- FUCO E&C cam kết giao sản phẩm đúng tiến độ, đáp ứng yêu cầu khắt khe của khách hàng.
Công ty sản xuất vỏ tủ điện uy tín tại Hà Nội – FUCO E&C
FUCO E&C tự hào là công ty sản xuất vỏ tủ điện uy tín tại Hà Nội, với bề dày nhiều năm kinh nghiệm trong ngành. Chúng tôi chuyên sâu trong lĩnh vực thiết kế, gia công và cung cấp vỏ tủ điện chất lượng cao, đáp ứng mọi yêu cầu khắt khe của từng dự án.
Với cơ sở vật chất hiện đại và đội ngũ kỹ sư, công nhân lành nghề, FUCO E&C cam kết mang đến những sản phẩm vỏ tủ điện không chỉ bền bỉ, an toàn mà còn có tính thẩm mỹ cao.
Dù là vỏ tủ điện công nghiệp, vỏ tủ điện dân dụng, vỏ tủ điều khiển hay các loại vỏ tủ điện chuyên dụng theo yêu cầu đặc biệt, chúng tôi đều có khả năng đáp ứng một cách linh hoạt và chuyên nghiệp.
FUCO E&C luôn sẵn sàng tư vấn và đưa ra các giải pháp vỏ tủ điện tùy chỉnh, đảm bảo phù hợp hoàn hảo với nhu cầu của quý khách hàng.
Sự hài lòng của khách hàng chính là kim chỉ nam cho mọi hoạt động của công ty sản xuất vỏ tủ điện FUCO E&C tại Hà Nội.
Kết luận
Lựa chọn công ty sản xuất vỏ tủ điện uy tín như FUCO E&C đảm bảo chất lượng, độ bền và sự phù hợp cho mọi dự án điện công nghiệp và dân dụng. Với quy trình sản xuất hiện đại, vật liệu cao cấp và khả năng tùy chỉnh linh hoạt, FUCO E&C là đối tác đáng tin cậy tại Hà Nội, đáp ứng mọi yêu cầu khắt khe của khách hàng.
Công ty cổ phần FUCO E&C – Chuyên sản xuất và cung cấp các thiết bị cơ điện theo yêu cầu.
Thông tin liên hệ
🌐 Website: https://sanxuattudien.com
📘 Facebook: https://www.facebook.com/Sanxuattudienfuco
📞 Hotline: +84 98 470 03 55
📧 Email: fucoec@gmail.com






